Laguna

Laguna
Metric

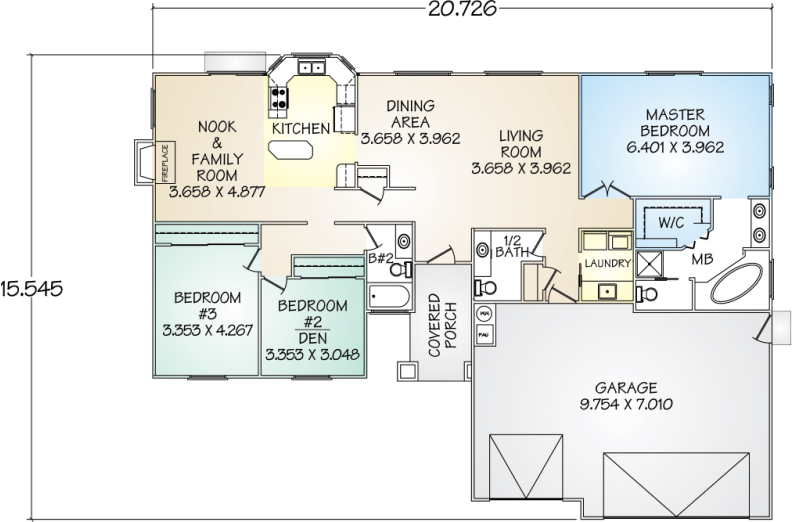
The essence of Old World style is captured in this exceptional one-story panelized kit home. The Laguna provides nine-foot ceilings and plenty of room for both formal and informal entertaining. Sleeping areas are split for privacy, with the master suite on one side of the home and secondary bedrooms with a full bath on the other. The spacious master suite features a master bath and a generous walk-in closet.

FAQs:

Yes. Storage alcoves, workbench space, and outlet locations can be planned during review without changing the 3-bay count, subject to engineering and local code.

Panelized Kit Home Specs:

  • Total Living Space: 1,938 ft² (180 m²)
  • Bedrooms: 3
  • Bathrooms:
  • Garage: 3 Car
  • Ceiling Height: 9’
  • Covered Porch: 114 ft² (11 m²)
  • Home Plan Cost: Included (February 2026)
  • Building Kit Cost: $104,844 (February 2026)
  • Style: 1 Story
  • Minimum Payment: $5,400
Download Free Plan Review Set

Want More Information?

Invalid Input
Invalid Input
Invalid Input
Invalid Input
Invalid Input

Add to Cart

Contact Us

We will contact you and draw up requirements for the project and estimate.
Please enter your first name
Please enter your last name
Please enter a valid email address
Invalid Input